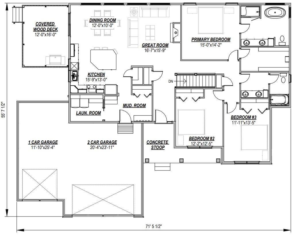
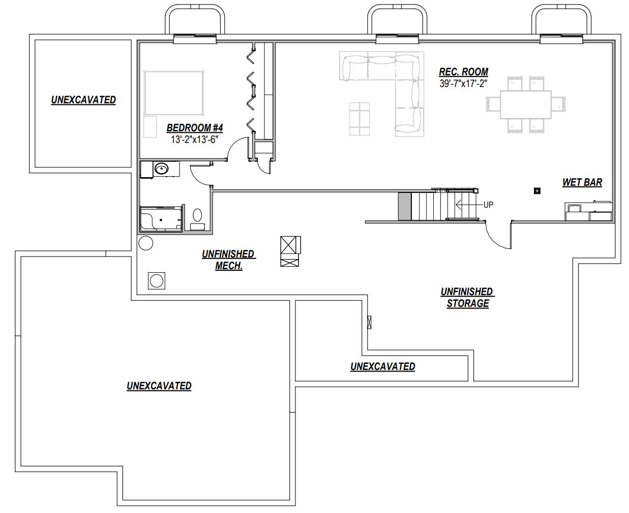
3,171 Total Sq Ft / 2,009 Main Floor Sq Ft 1,162 Basement Sq Ft / 832 Garage Sq Ft / 4 Bed / 3 Bath
Features shown in photos are from previous versions of the floor plan and may not be reflected in the base price.