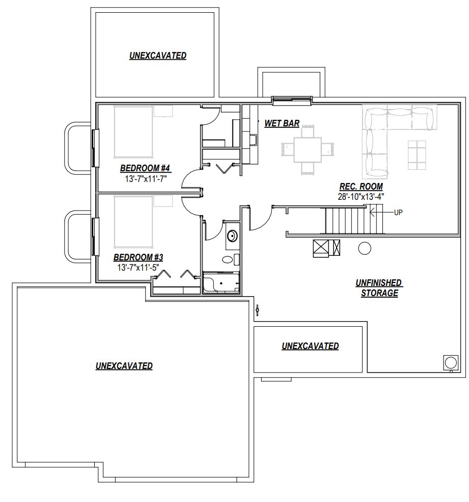
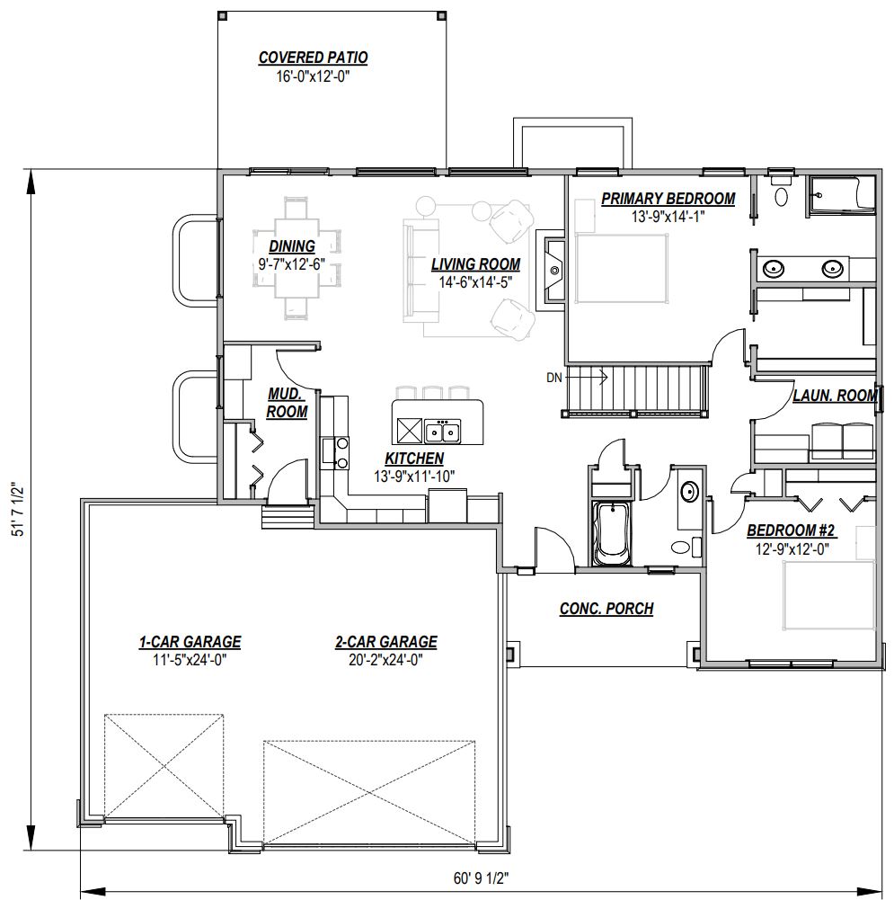
2,566 Total Sq Ft / 1,558 Main Floor Sq Ft 1,008 Basement Sq Ft / 799 Garage Sq Ft / 4 Bed / 3 Bath
Features shown in photos are from previous versions of the floor plan and may not be reflected in the base price.