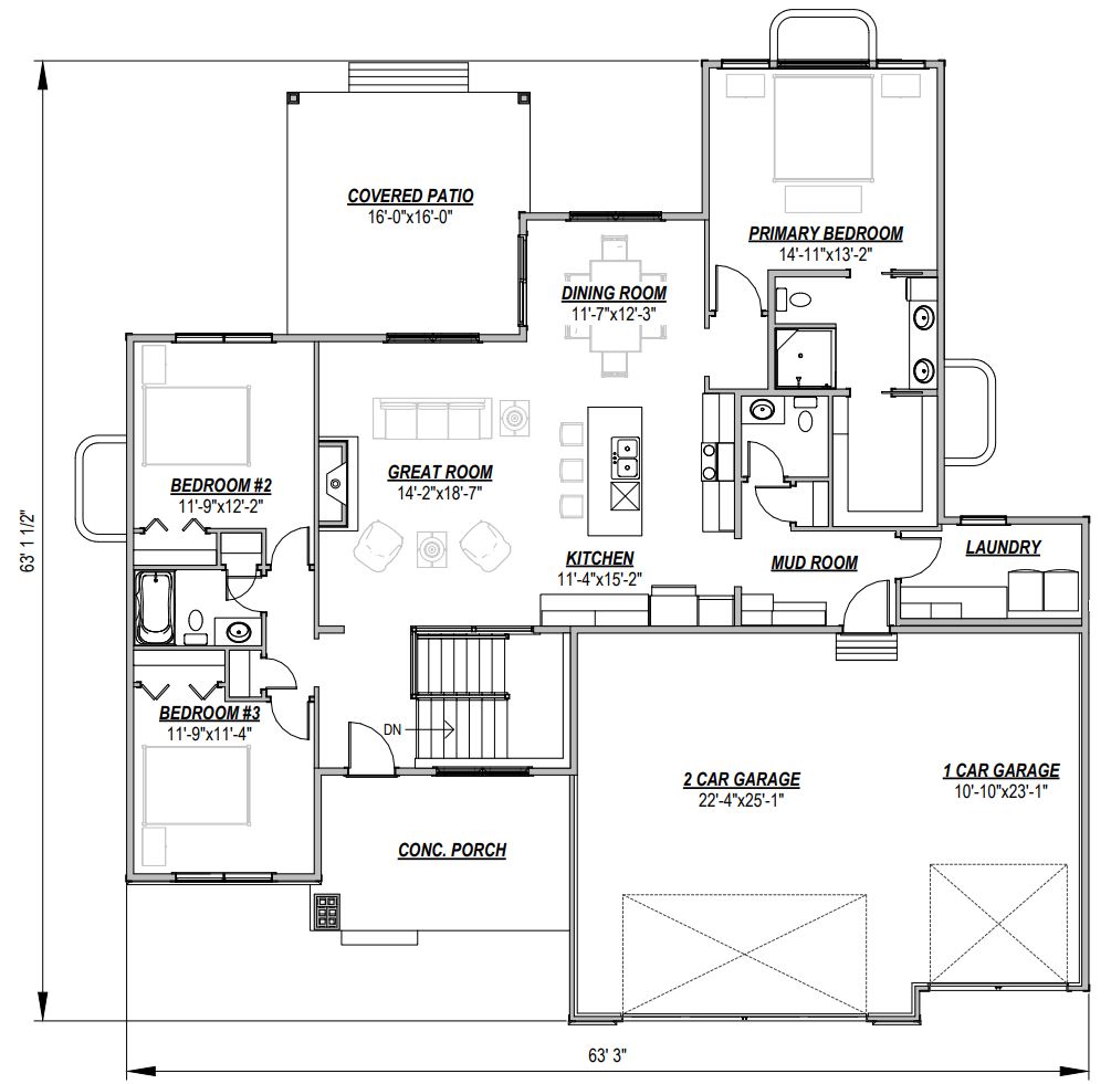
3,258 Total Sq Ft / 1,875 Main Floor Sq Ft 1,383 Basement Sq Ft / 843 Garage Sq Ft / 5 Bed / 3.5 Bath
Features shown in photos are from previous versions of the floor plan and may not be reflected in the base price.