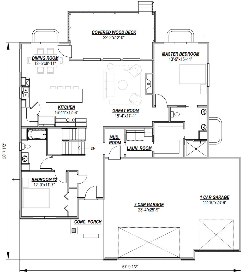
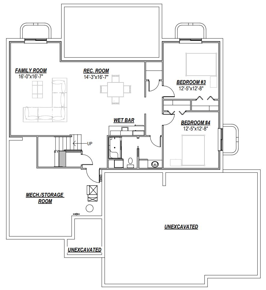
2,970 Total Sq Ft / 1,724 Main Sq Ft 1,246 Basement Sq Ft / 917 Garage Sq Ft / 4 Bed / 3 Bath
Features shown in photos are from previous versions of the floor plan and may not be reflected in the base price.