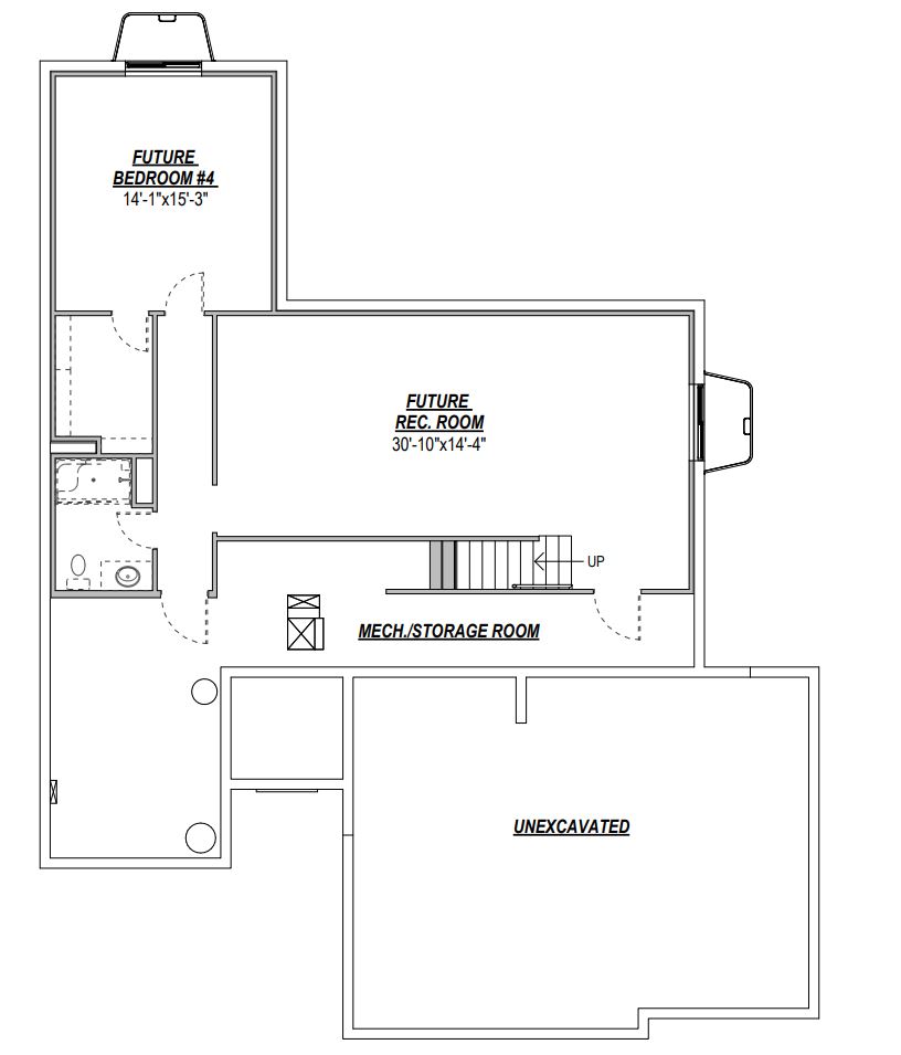
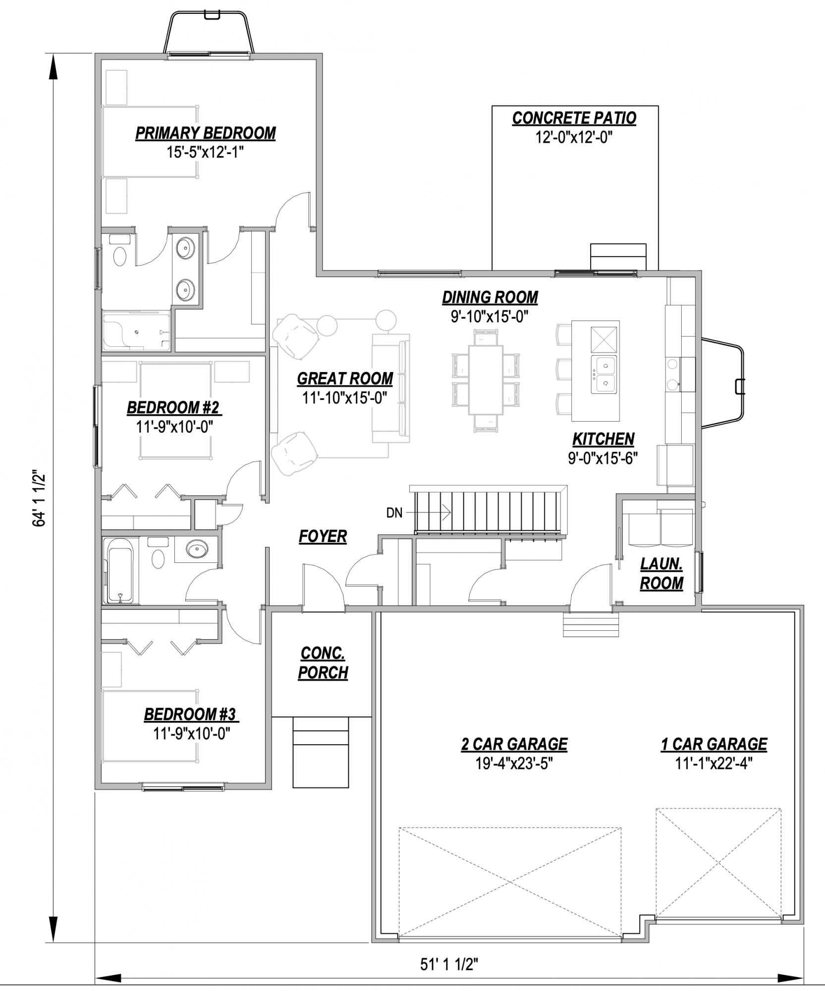
1,498 Total Sq Ft / 1,498 Main Floor Sq Ft 977 Possible Basement Sq Ft / 732 Garage Sq Ft / 3 Bed / 2 Bath
Features shown in photos are from previous versions of the floor plan and may not be reflected in the base price.